Одноэтажный дом «Фикус»

5,78
млн. ₽
Описание проекта
Проект «Фикус» — это пример того, как современная архитектура может быть уютной и функциональной. Это компактный, но вместительный одноэтажный дом, выполненный в популярном стиле барнхаус-лайт или скандинавский минимализм. Простая геометрия дома с классической двускатной крышей дополнена стильной комбинированной отделкой фасада: светлая штукатурка гармонично сочетается с теплыми деревянными планкенами в зонах окон и входной группы. Такое решение придает дому благородный и завершенный вид, который будет отлично смотреться на любом загородном участке.

Планировочные решения
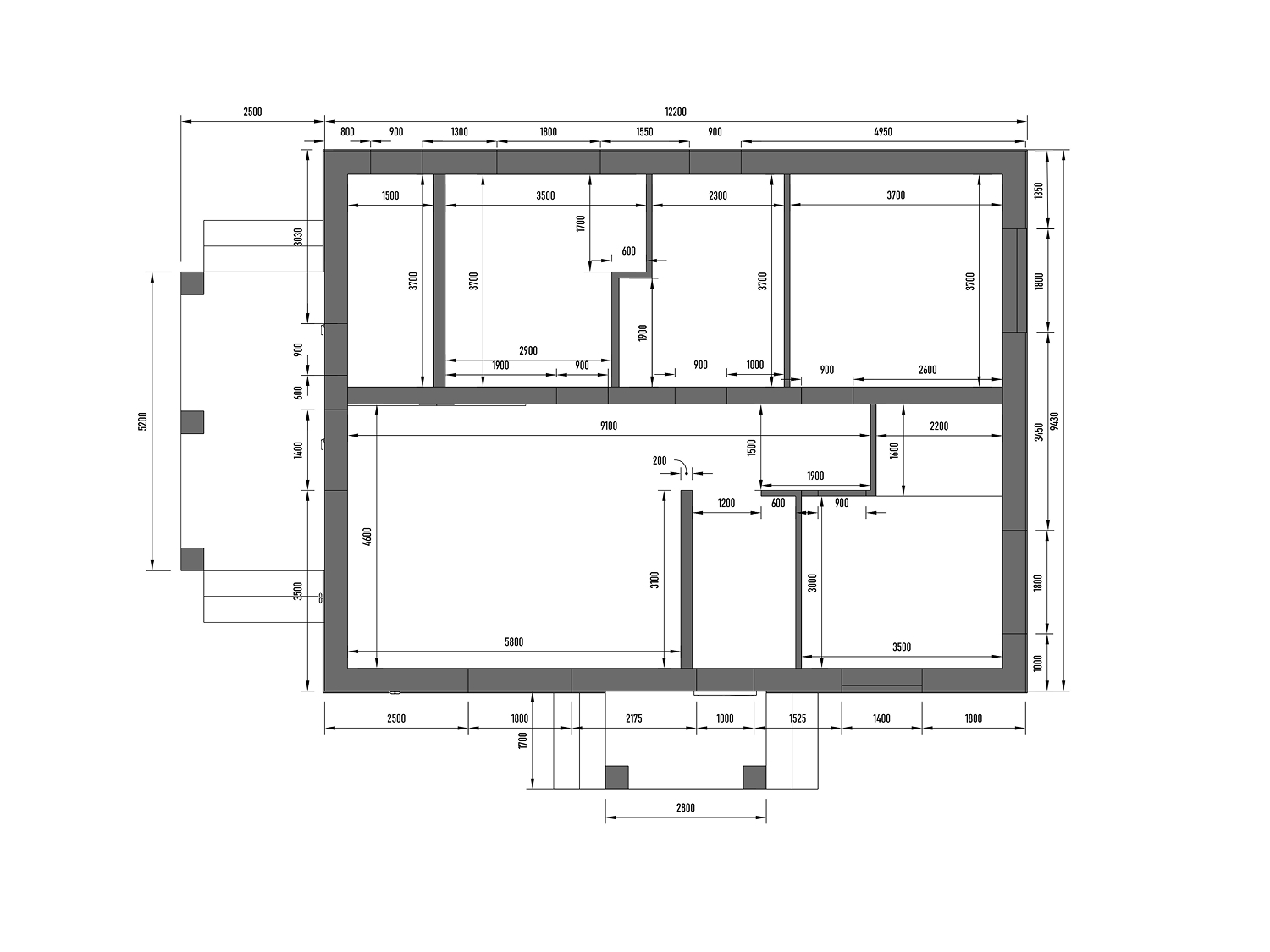
Внутреннее пространство дома «Фикус» (габариты основного контура ~12.2 х 9.4 м) спроектировано так, чтобы исключить неиспользуемые зоны и дать максимум комфорта жильцам:
  • Сердце дома: Просторная кухня-гостиная площадью 26,6 м² — это центр семейной жизни. Здесь предусмотрено панорамное остекление, которое визуально увеличивает пространство и наполняет его светом. Главная «фишка» этой зоны — прямой выход на большую крытую террасу. В теплое время года она станет любимым местом для семейных ужинов или утреннего кофе, защищенным от дождя и прямого солнца.
  • Приватная зона: В доме грамотно организована зона отдыха, включающая три изолированные комнаты. Две спальни (ориентировочно 13,7 м² и 12 м²) станут отличным решением для родителей и детей, а третья комната (около 8,5–10 м²) может быть использована как кабинет, гостевая спальня или гардеробная, в зависимости от потребностей вашей семьи.
  • Комфорт и быт: Планировка включает просторный холл, объединяющий все помещения, и функциональный санузел, расположенный так, чтобы быть доступным из любой точки дома.
  • Техническая оснащенность: Проект предусматривает наличие тамбура-прихожей, который отсекает холодный воздух с улицы, а также возможность организации технического помещения (котельной/постирочной) рядом с входом, что обеспечивает удобство обслуживания инженерных систем без доступа в жилые комнаты.

Почему стоит выбрать дом «Фикус»:
  1. Практичность: Простая форма кровли и пятна застройки оптимизирует стоимость строительства и дальнейшей эксплуатации.
  2. Связь с природой: Большая терраса и панорамные окна интегрируют дом в окружающий ландшафт.
  3. Универсальность: Наличие трех жилых комнат делает этот дом подходящим даже для многодетной семьи.

Наша компания имеет богатый опыт в реализации подобных проектов. Мы готовы построить дом «Фикус» для вас, адаптировав его под ваши индивидуальные пожелания и особенности участка. Приглашаем обсудить детали!
Характеристики проекта «Фикус»
Планировка

Характеристики проекта «Фикус»

Общие параметры:
  • Габаритные размеры дома: 12,2 х 9,4 м (без учета террасы)
  • Этажность: 1 этаж
  • Количество спален: 3
  • Количество санузлов: 1

Экспликация помещений (площади):
  • Кухня-гостиная: 26,6 м² — светлая общая зона с панорамным выходом на террасу.
  • Спальня №1: 13,7 м² — просторная изолированная комната.
  • Спальня №2: 12,0 м² — спальная комната правильной формы.
  • Спальня №3 (Кабинет): 8,5 м² — компактная комната, подходящая для детской или кабинета.
  • Санузел: 5,0 м² — совмещенная ванная комната.
  • Котельная: 4,2 м² — техническое помещение для размещения инженерного оборудования.
  • Холл: 7,2 м² — распределительная зона, объединяющая комнаты.
  • Тамбур: 3,4 м² — тепловой шлюз при входе в дом.

Внешние элементы:
  • Терраса: 24,8 м² — большая крытая площадка для отдыха на свежем воздухе.
  • Крыльцо: 4,2 м² — удобная входная группа.

Особенности планировки:
  • Наличие просторной крытой террасы, интегрированной в контур крыши.
  • Рациональное зонирование: спальни отделены от шумной гостиной зоны.
  • Предусмотрена отдельная котельная рядом со входом.
  • Три изолированные жилые комнаты при компактных габаритах дома.

Планировка