Кирпичный двухэтажный дом «Виола»

7,14
млн. ₽
Описание проекта
Проект «Виола» — это идеальное решение для семьи, которая ценит современную эстетику и рациональное использование пространства. Это компактный, но вместительный двухэтажный дом, который благодаря своей архитектуре позволяет сохранить максимум свободного места на участке для сада или зоны барбекю.
Внешний облик дома притягивает взгляд строгой геометрией и элегантным контрастом: белоснежная штукатурка фасада эффектно сочетается с темными вставками между окнами и графичной темной кровлей. Важной особенностью экстерьера является интегрированный навес для автомобиля, который гармонично вписан в общий силуэт здания, а также уютное крыльцо-терраса.

Планировочные решения
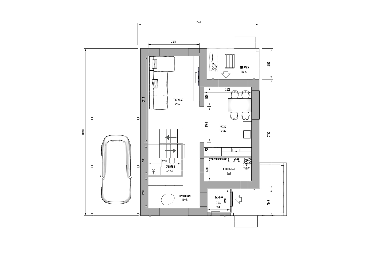
Внутреннее пространство дома (общая ширина фасада ~8.3 м без учета навеса) спроектировано так, чтобы разделить жизнь семьи на активную дневную и тихую ночную зоны.
  • Первый этаж — территория общения:
  • Сердце дома: Просторная гостиная (22 м²) плавно перетекает в светлую кухню-столовую (15,73 м²). Это единое пространство площадью почти 38 м² станет любимым местом для семейных ужинов. Из зоны кухни-гостиной предусмотрен выход на уютную крытую террасу (10,6 м²), где приятно пить кофе по утрам.
  • Входная группа: Дом встречает жильцов тамбуром (2,6 м²), отсекающим холодный воздух, и переходит в просторную прихожую (10,95 м²), где легко разместятся вместительные шкафы для одежды.
  • Технический комфорт: На первом этаже расположена отдельная котельная (5 м²) с входом из тамбура, а также гостевой санузел (4,79 м²), удобно расположенный рядом с лестницей.
  • Второй этаж — приватная зона отдыха:
  • Поднявшись по лестнице, вы попадаете в тихую спальную зону. Здесь спроектированы три изолированные комнаты.
  • Родительская спальня: Большая мастер-спальня площадью 17,26 м² с местом для широкой кровати и гардероба.
  • Детские комнаты: Две уютные спальни (12,32 м² и 11,55 м²) правильной формы, которые легко адаптировать под детские, гостевую комнату или домашний кабинет.
  • Релакс: Жемчужина второго этажа — просторная ванная комната (8,10 м²). Её размеры позволяют разместить полноразмерную ванну, создав собственный домашний спа-уголок.

Особенности проекта:
  • Рациональная вертикальная планировка.
  • Наличие крытого навеса для защиты автомобиля от осадков и солнца.
  • Панорамное остекление в жилых комнатах для максимальной инсоляции.

Наша компания готова воплотить проект «Виола» в жизнь, адаптировав его под особенности вашего участка. Мы можем обсудить варианты отделки фасада и внести необходимые корректировки в планировку. Свяжитесь с нами, чтобы узнать подробности и получить расчет стоимости строительства!
Характеристики проекта «Виола»
Планировка

Характеристики проекта «Виола»

Общие параметры:
  • Габаритные размеры дома: ~12,2 х 9,5 м (с учетом навеса для автомобиля)
  • Этажность: 2 этажа
  • Количество спален: 3
  • Количество санузлов: 2

Экспликация помещений (площади):
  • Гостиная: 22,0 м² — светлая зона отдыха с выходом на террасу.
  • Кухня-столовая: 15,73 м² — функциональное пространство, визуально объединенное с гостиной.
  • Мастер-спальня: 17,26 м² — самая просторная комната на втором этаже.
  • Спальня №2: 12,32 м².
  • Спальня №3: 11,55 м².
  • Ванная комната (2 этаж): 8,10 м² — основная санитарная зона большой площади.
  • Санузел (1 этаж): 4,79 м² — гостевой туалет, где также можно разместить душевую.
  • Котельная: 5,0 м² — техническое помещение с входом из тамбура.
  • Холл (1 этаж): 10,95 м² — просторная прихожая с местом под лестницу.
  • Тамбур: 2,6 м² — тепловой шлюз, отсекающий холодный воздух.
  • Кладовая: 1,5 м² — небольшое место хранения при кухне.

Внешние элементы:
  • Крытая терраса: 10,6 м² — уютная зона на заднем дворе с выходом из гостиной.
  • Навес для авто: интегрированная конструкция для парковки машины рядом с домом.
Особенности планировки:
  • Четкое поэтажное зонирование: первый этаж — общественная зона, второй — приватная.
  • Наличие полноценной просторной ванной комнаты на втором этаже (более 8 м²).
  • Встроенный навес для автомобиля, экономящий место на участке.
  • Удобное расположение котельной (грязная зона отсечена от жилой).

Планировка